Готовый Дом id 19406
- Поселок:
- Ренессанс парк
- Направление:
- Новорижское ш., 19 км
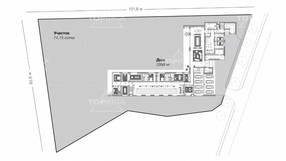
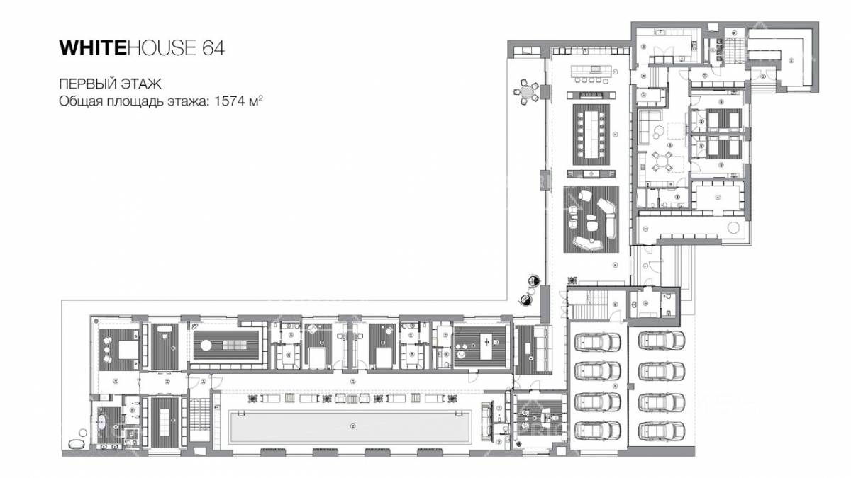
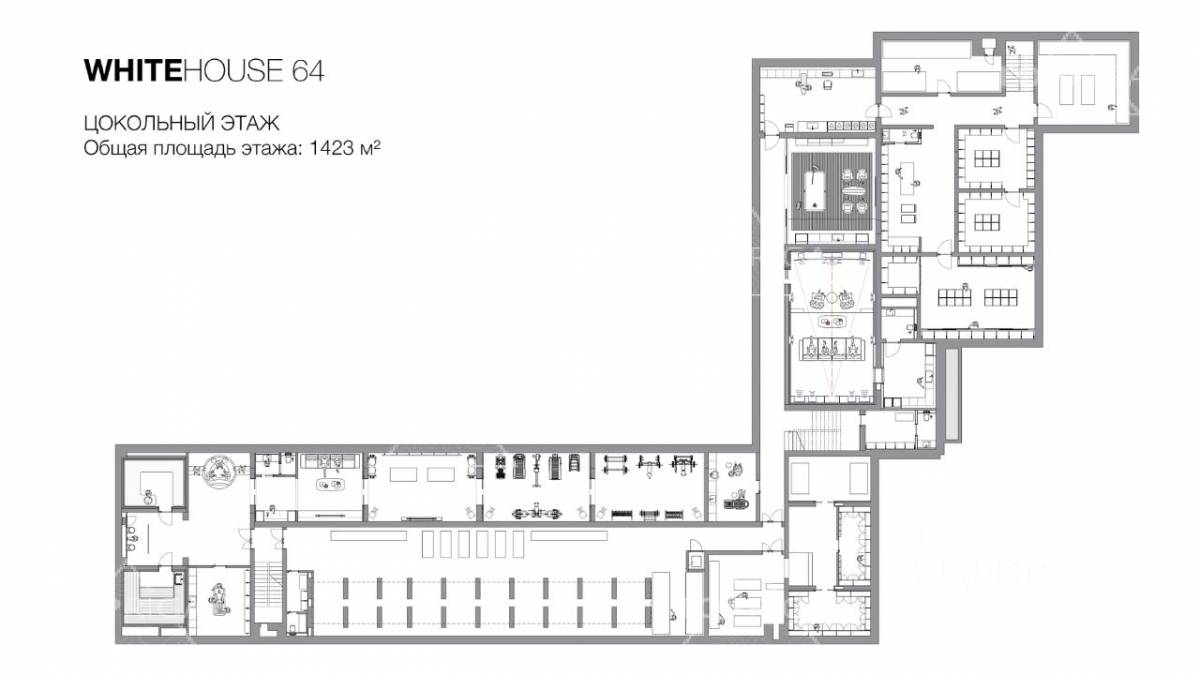
- Площадь дома:
- 2998 м2
- Площадь участка:
- 75 соток
- Состояние:
- Под ключ
- Количество спален:
- 6
- Стоимость:
-
1 563 800 000 руб.$ 20 000 000
- В избранное
- На почту
- Распечатать
+7 (495) 120-00-99




